Elected Officials
Courts
Departments
Initiatives
Open Government
About
Login / Register
Home
/
Property & Tax Records
/
Property Records
/
Property & Tax Search
/
Parcel Profile
/
Sketches
Search for Another Parcel
Parcel Profile
Historical Card
Sketches
Photos
Tax Map
Taxes
Print View
Address: 10463 BOWMAN AVE
Parcel: 09005012000700
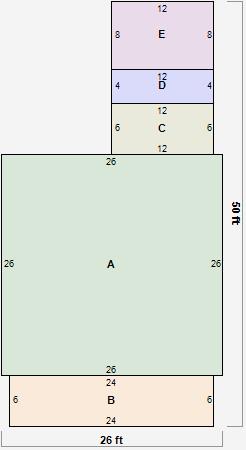
Parcel Sketches
Residential Card 1
A
MAIN
676 square feet
B
OFP OPEN FRAME PORCH
144 square feet
C
EFP ENCL FRAME PORCH
72 square feet
D
OFP OPEN FRAME PORCH
48 square feet
E
WDDCK WOOD DECKS
96 square feet