Elected Officials
Courts
Departments
Initiatives
Open Government
About
Login / Register
Home
/
Property & Tax Records
/
Property Records
/
Property & Tax Search
/
Parcel Profile
/
Sketches
Search for Another Parcel
Parcel Profile
Historical Card
Sketches
Photos
Tax Map
Taxes
Print View
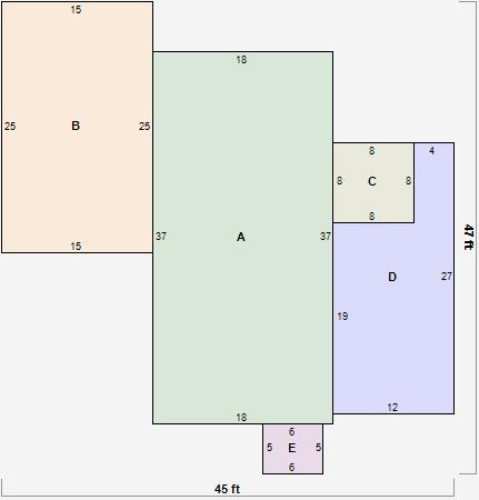
Address: 10133 JOHN WILLIAMS AVE
Parcel: 09006011000700
Parcel Sketches
Residential Card 1
A
MAIN
666 square feet
B
FR GR FRAME GARAGE
375 square feet
C
EFP ENCL FRAME PORCH
64 square feet
D
OFP OPEN FRAME PORCH
260 square feet
E
EFP ENCL FRAME PORCH
30 square feet