Elected Officials
Courts
Departments
Initiatives
Open Government
About
Login / Register
Home
/
Property & Tax Records
/
Property Records
/
Property & Tax Search
/
Parcel Profile
/
Sketches
Search for Another Parcel
Parcel Profile
Historical Card
Sketches
Photos
Tax Map
Taxes
Print View
Address: 101 BEECH ST
Parcel: 11001007000800
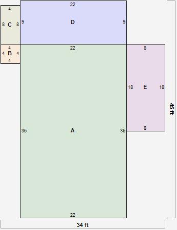
Parcel Sketches
Residential Card 1
A
MAIN
792 square feet
B
FR UT FRAME UTILITY BUILDING
16 square feet
C
FR UT FRAME UTILITY BUILDING
32 square feet
D
1S FR ONE STORY FRAME
198 square feet
E
WDDCK WOOD DECKS
144 square feet