Elected Officials
Courts
Departments
Initiatives
Open Government
About
Login / Register
Home
/
Property & Tax Records
/
Property Records
/
Property & Tax Search
/
Parcel Profile
/
Sketches
Search for Another Parcel
Parcel Profile
Historical Card
Sketches
Photos
Tax Map
Taxes
Print View
Address: 903 LAKESIDE DR LT 2
Parcel: 11001008000400
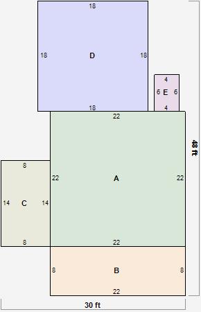
Parcel Sketches
Residential Card 1
A
MAIN
484 square feet
B
EFP ENCL FRAME PORCH
176 square feet
C
1S FR ONE STORY FRAME
112 square feet
D
UNFIN BSMT BASEMENT UNFINISHED 1S FR ONE STORY FRAME
324 square feet
E
OFP OPEN FRAME PORCH
24 square feet