Elected Officials
Courts
Departments
Initiatives
Open Government
About
Login / Register
Home
/
Property & Tax Records
/
Property Records
/
Property & Tax Search
/
Parcel Profile
/
Sketches
Search for Another Parcel
Parcel Profile
Historical Card
Sketches
Photos
Tax Map
Taxes
Print View
Address: 106 BILLINGS DR
Parcel: 11003031002300
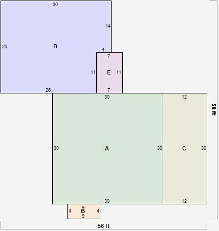
Parcel Sketches
Residential Card 1
A
MAIN
900 square feet
B
OFP OPEN FRAME PORCH
36 square feet
C
UNFIN BSMT BASEMENT UNFINISHED 1S FR ONE STORY FRAME
360 square feet
D
UNFIN BSMT BASEMENT UNFINISHED 1S FR ONE STORY FRAME
706 square feet
E
OFP OPEN FRAME PORCH
77 square feet