Elected Officials
Courts
Departments
Initiatives
Open Government
About
Login / Register
Home
/
Property & Tax Records
/
Property Records
/
Property & Tax Search
/
Parcel Profile
/
Sketches
Search for Another Parcel
Parcel Profile
Historical Card
Sketches
Photos
Tax Map
Taxes
Print View
Address: 213 E NORMAL ST
Parcel: 11010045001600
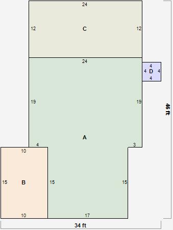
Parcel Sketches
Residential Card 1
A
MAIN
711 square feet
B
EFP ENCL FRAME PORCH
150 square feet
C
UNFIN BSMT BASEMENT UNFINISHED 1S FR ONE STORY FRAME 1/2FR FRAME HALF-STORY
288 square feet
D
OFP OPEN FRAME PORCH
16 square feet