Elected Officials
Courts
Departments
Initiatives
Open Government
About
Login / Register
Home
/
Property & Tax Records
/
Property Records
/
Property & Tax Search
/
Parcel Profile
/
Sketches
Search for Another Parcel
Parcel Profile
Historical Card
Sketches
Photos
Tax Map
Taxes
Print View
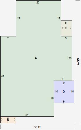
Address: 125 27 HIGH ST
Parcel: 11010045002000
Parcel Sketches
Residential Card 1
A
MAIN
1344 square feet
B
OFP OPEN FRAME PORCH
21 square feet
C
OFP OPEN FRAME PORCH
35 square feet
D
OFP OPEN FRAME PORCH
90 square feet