Elected Officials
Courts
Departments
Initiatives
Open Government
About
Login / Register
Home
/
Property & Tax Records
/
Property Records
/
Property & Tax Search
/
Parcel Profile
/
Sketches
Search for Another Parcel
Parcel Profile
Historical Card
Sketches
Photos
Tax Map
Taxes
Print View
Address: 122 WATER ST
Parcel: 11014041002000
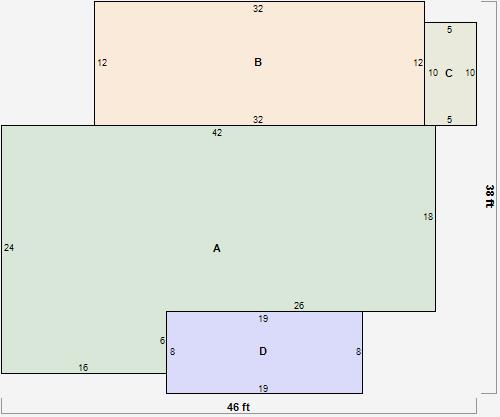
Parcel Sketches
Residential Card 1
A
MAIN
852 square feet
B
1S FR ONE STORY FRAME
384 square feet
C
MA_PT CONC/MAS PATIO
50 square feet
D
OFP OPEN FRAME PORCH
152 square feet