Elected Officials
Courts
Departments
Initiatives
Open Government
About
Login / Register
Home
/
Property & Tax Records
/
Property Records
/
Property & Tax Search
/
Parcel Profile
/
Sketches
Search for Another Parcel
Parcel Profile
Historical Card
Sketches
Photos
Tax Map
Taxes
Print View
Address: 11528 E PLEASANT ST
Parcel: 12008002001600
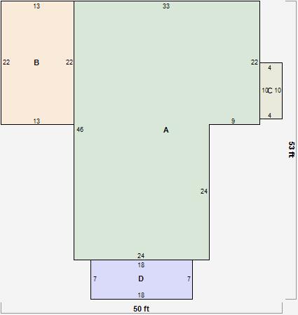
Parcel Sketches
Residential Card 1
A
MAIN
1302 square feet
B
FR GR FRAME GARAGE AT FN ATTIC-FINISHED
286 square feet
C
EFP ENCL FRAME PORCH
40 square feet
D
EFP ENCL FRAME PORCH
126 square feet