Elected Officials
Courts
Departments
Initiatives
Open Government
About
Login / Register
Home
/
Property & Tax Records
/
Property Records
/
Property & Tax Search
/
Parcel Profile
/
Sketches
Search for Another Parcel
Parcel Profile
Historical Card
Sketches
Photos
Tax Map
Taxes
Print View
Address: 11570 E PLEASANT ST
Parcel: 12008002001900
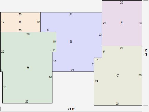
Parcel Sketches
Residential Card 1
A
MAIN
940 square feet
B
OFP OPEN FRAME PORCH
200 square feet
C
FR GR FRAME GARAGE
696 square feet
D
1S FR ONE STORY FRAME
762 square feet
E
1S FR ONE STORY FRAME
460 square feet