Elected Officials
Courts
Departments
Initiatives
Open Government
About
Login / Register
Home
/
Property & Tax Records
/
Property Records
/
Property & Tax Search
/
Parcel Profile
/
Sketches
Search for Another Parcel
Parcel Profile
Historical Card
Sketches
Photos
Tax Map
Taxes
Print View
Address: 9500 SHERMAN RD
Parcel: 13009021000801
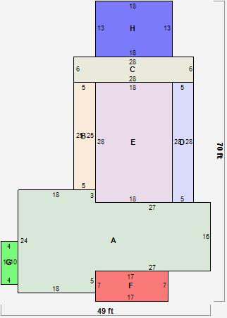
Parcel Sketches
Residential Card 1
A
MAIN
864 square feet
B
OFP OPEN FRAME PORCH
125 square feet
C
WDDCK WOOD DECKS
168 square feet
D
OFP OPEN FRAME PORCH
140 square feet
E
1S FR ONE STORY FRAME
504 square feet
F
EFP ENCL FRAME PORCH
119 square feet
G
WDDCK WOOD DECKS
40 square feet
H
WDDCK WOOD DECKS
234 square feet