Elected Officials
Courts
Departments
Initiatives
Open Government
About
Login / Register
Home
/
Property & Tax Records
/
Property Records
/
Property & Tax Search
/
Parcel Profile
/
Sketches
Search for Another Parcel
Parcel Profile
Historical Card
Sketches
Photos
Tax Map
Taxes
Print View
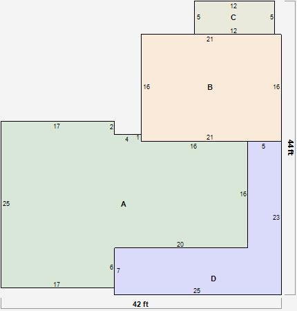
Address: 10180 SHERMAN RD
Parcel: 13010021001500
Parcel Sketches
Residential Card 1
A
MAIN
749 square feet
B
1S FR ONE STORY FRAME
336 square feet
C
FR UT FRAME UTILITY BUILDING
60 square feet
D
OFP OPEN FRAME PORCH
255 square feet