Elected Officials
Courts
Departments
Initiatives
Open Government
About
Login / Register
Home
/
Property & Tax Records
/
Property Records
/
Property & Tax Search
/
Parcel Profile
/
Sketches
Search for Another Parcel
Parcel Profile
Historical Card
Sketches
Photos
Tax Map
Taxes
Print View
Address: 9697 SHERMAN RD
Parcel: 13014028000503
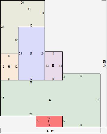
Parcel Sketches
Residential Card 1
A
MAIN
856 square feet
B
EFP ENCL FRAME PORCH
96 square feet
C
WDDCK WOOD DECKS
336 square feet
D
UNFIN BSMT BASEMENT UNFINISHED 1S FR ONE STORY FRAME
288 square feet
E
EFP ENCL FRAME PORCH
104 square feet
F
OFP OPEN FRAME PORCH
60 square feet