Elected Officials
Courts
Departments
Initiatives
Open Government
About
Login / Register
Home
/
Property & Tax Records
/
Property Records
/
Property & Tax Search
/
Parcel Profile
/
Sketches
Search for Another Parcel
Parcel Profile
Historical Card
Sketches
Photos
Tax Map
Taxes
Print View
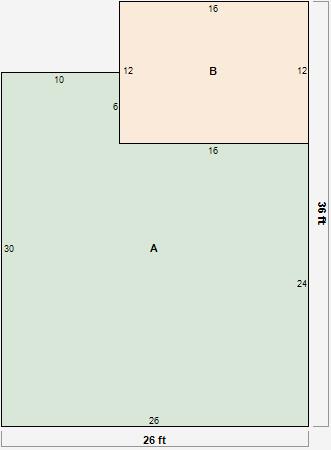
Address: 9543 SHERMAN RD
Parcel: 13014028000600
Parcel Sketches
Residential Card 1
A
MAIN
684 square feet
B
FR UT FRAME UTILITY BUILDING
192 square feet