Elected Officials
Courts
Departments
Initiatives
Open Government
About
Login / Register
Home
/
Property & Tax Records
/
Property Records
/
Property & Tax Search
/
Parcel Profile
/
Sketches
Search for Another Parcel
Parcel Profile
Historical Card
Sketches
Photos
Tax Map
Taxes
Print View
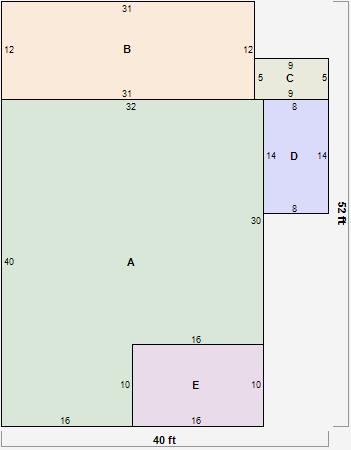
Address: 9070 CROSSINGVILLE RD
Parcel: 13021036000800
Parcel Sketches
Residential Card 1
A
MAIN
1120 square feet
B
WDDCK WOOD DECKS
372 square feet
C
EFP ENCL FRAME PORCH
45 square feet
D
EFP ENCL FRAME PORCH
112 square feet
E
EFP ENCL FRAME PORCH
160 square feet