Elected Officials
Courts
Departments
Initiatives
Open Government
About
Login / Register
Home
/
Property & Tax Records
/
Property Records
/
Property & Tax Search
/
Parcel Profile
/
Sketches
Search for Another Parcel
Parcel Profile
Historical Card
Sketches
Photos
Tax Map
Taxes
Print View
Address: 10277 ROUTE 6N
Parcel: 13026039000800
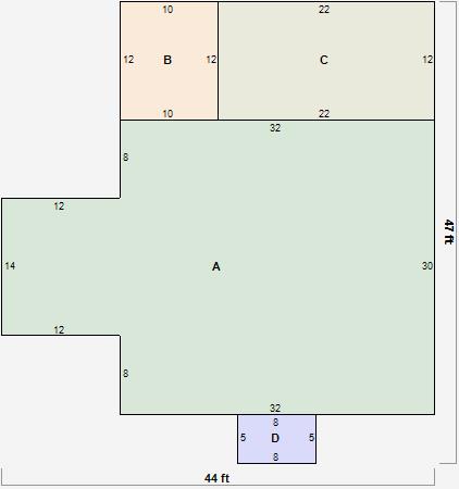
Parcel Sketches
Residential Card 1
A
MAIN
1128 square feet
B
OFP OPEN FRAME PORCH
120 square feet
C
1SMAS MASONRY
264 square feet
D
EMP ENCL MASONRY PORCH
40 square feet