Elected Officials
Courts
Departments
Initiatives
Open Government
About
Login / Register
Home
/
Property & Tax Records
/
Property Records
/
Property & Tax Search
/
Parcel Profile
/
Sketches
Search for Another Parcel
Parcel Profile
Historical Card
Sketches
Photos
Tax Map
Taxes
Print View
Address: 324 E 6 ST
Parcel: 14010011011900
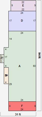
Parcel Sketches
Residential Card 1
A
MAIN
1508 square feet
B
OFP OPEN FRAME PORCH
56 square feet
C
FRBAY FRAME BAY
21 square feet
D
1SMAS MASONRY
408 square feet
E
EFP ENCL FRAME PORCH
198 square feet
F
OMP OPEN MASONRY PORCH EFP ENCL FRAME PORCH
192 square feet