Elected Officials
Courts
Departments
Initiatives
Open Government
About
Login / Register
Home
/
Property & Tax Records
/
Property Records
/
Property & Tax Search
/
Parcel Profile
/
Sketches
Search for Another Parcel
Parcel Profile
Historical Card
Sketches
Photos
Tax Map
Taxes
Print View
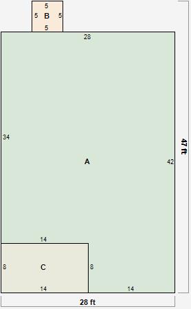
Address: 412 PARADE ST
Parcel: 14010011020500
Parcel Sketches
Residential Card 1
A
MAIN
1064 square feet
B
UNFIN BSMT BASEMENT UNFINISHED MA STOOP/TERR MAS STOOP
25 square feet
C
OMP OPEN MASONRY PORCH
112 square feet