Elected Officials
Courts
Departments
Initiatives
Open Government
About
Login / Register
Home
/
Property & Tax Records
/
Property Records
/
Property & Tax Search
/
Parcel Profile
/
Sketches
Search for Another Parcel
Parcel Profile
Historical Card
Sketches
Photos
Tax Map
Taxes
Print View
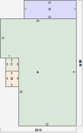
Address: 505 PARADE ST
Parcel: 14010014013900
Parcel Sketches
Residential Card 1
A
MAIN
1007 square feet
B
OFP OPEN FRAME PORCH
30 square feet
C
EFP ENCL FRAME PORCH
25 square feet
D
1S FR ONE STORY FRAME
140 square feet