Elected Officials
Courts
Departments
Initiatives
Open Government
About
Login / Register
Home
/
Property & Tax Records
/
Property Records
/
Property & Tax Search
/
Parcel Profile
/
Sketches
Search for Another Parcel
Parcel Profile
Historical Card
Sketches
Photos
Tax Map
Taxes
Print View
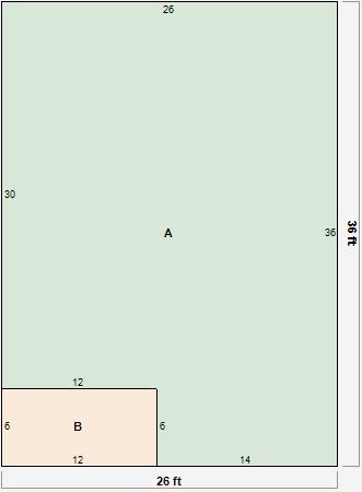
Address: 611 WALLACE ST
Parcel: 14010016022400
Parcel Sketches
Residential Card 1
A
MAIN
864 square feet
B
EMP ENCL MASONRY PORCH
72 square feet