Elected Officials
Courts
Departments
Initiatives
Open Government
About
Login / Register
Home
/
Property & Tax Records
/
Property Records
/
Property & Tax Search
/
Parcel Profile
/
Sketches
Search for Another Parcel
Parcel Profile
Historical Card
Sketches
Photos
Tax Map
Taxes
Print View
Address: 619 WALLACE ST
Parcel: 14010016022600
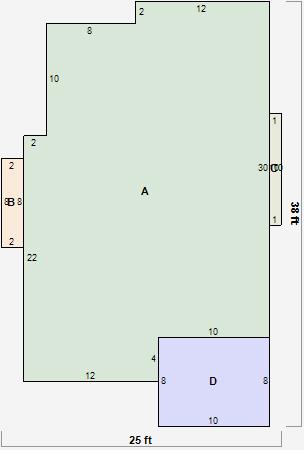
Parcel Sketches
Residential Card 1
A
MAIN
668 square feet
B
UNFIN BSMT BASEMENT UNFINISHED FROVR FRAME OVERHANG FROVR FRAME OVERHANG
16 square feet
C
FROVR FRAME OVERHANG FROVR FRAME OVERHANG
10 square feet
D
EFP ENCL FRAME PORCH
80 square feet