Elected Officials
Courts
Departments
Initiatives
Open Government
About
Login / Register
Home
/
Property & Tax Records
/
Property Records
/
Property & Tax Search
/
Parcel Profile
/
Sketches
Search for Another Parcel
Parcel Profile
Historical Card
Sketches
Photos
Tax Map
Taxes
Print View
Address: 524 E 7 ST
Parcel: 14010016023400
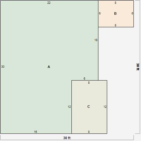
Parcel Sketches
Residential Card 1
A
MAIN
908 square feet
B
EFP ENCL FRAME PORCH
16 square feet
C
OFP OPEN FRAME PORCH
48 square feet
Residential Card 2
A
MAIN
588 square feet
B
EFP ENCL FRAME PORCH
48 square feet
C
OMP OPEN MASONRY PORCH
96 square feet