Elected Officials
Courts
Departments
Initiatives
Open Government
About
Login / Register
Home
/
Property & Tax Records
/
Property Records
/
Property & Tax Search
/
Parcel Profile
/
Sketches
Search for Another Parcel
Parcel Profile
Historical Card
Sketches
Photos
Tax Map
Taxes
Print View
Address: 519 E 4 ST
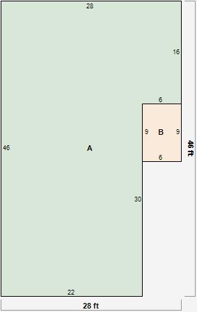
Parcel: 14010017021800
Parcel Sketches
Residential Card 1
A
MAIN
1108 square feet
B
EFP ENCL FRAME PORCH
54 square feet