Elected Officials
Courts
Departments
Initiatives
Open Government
About
Login / Register
Home
/
Property & Tax Records
/
Property Records
/
Property & Tax Search
/
Parcel Profile
/
Sketches
Search for Another Parcel
Parcel Profile
Historical Card
Sketches
Photos
Tax Map
Taxes
Print View
Address: 409 WALLACE ST
Parcel: 14010017022400
Parcel Sketches
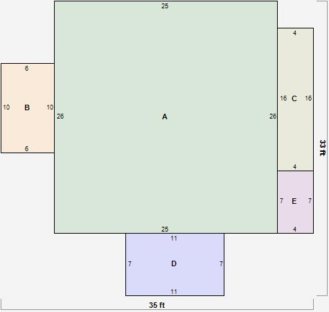
Residential Card 1
A
MAIN
650 square feet
B
EFP ENCL FRAME PORCH
60 square feet
C
EFP ENCL FRAME PORCH EFP ENCL FRAME PORCH
64 square feet
D
EFP ENCL FRAME PORCH
77 square feet
E
EFP ENCL FRAME PORCH
28 square feet