Elected Officials
Courts
Departments
Initiatives
Open Government
About
Login / Register
Home
/
Property & Tax Records
/
Property Records
/
Property & Tax Search
/
Parcel Profile
/
Sketches
Search for Another Parcel
Parcel Profile
Historical Card
Sketches
Photos
Tax Map
Taxes
Print View
Address: 332 ASH ST
Parcel: 14010018010000
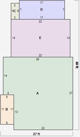
Parcel Sketches
Residential Card 1
A
MAIN
650 square feet
B
OFP OPEN FRAME PORCH
55 square feet
C
OFP OPEN FRAME PORCH
18 square feet
D
EFP ENCL FRAME PORCH
119 square feet
E
1S FR ONE STORY FRAME
308 square feet