Elected Officials
Courts
Departments
Initiatives
Open Government
About
Login / Register
Home
/
Property & Tax Records
/
Property Records
/
Property & Tax Search
/
Parcel Profile
/
Sketches
Search for Another Parcel
Parcel Profile
Historical Card
Sketches
Photos
Tax Map
Taxes
Print View
Address: 550 E 4 ST
Parcel: 14010018013200
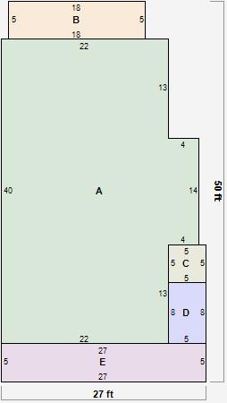
Parcel Sketches
Residential Card 1
A
MAIN
936 square feet
B
EFP ENCL FRAME PORCH
90 square feet
C
EFP ENCL FRAME PORCH OFP OPEN FRAME PORCH
25 square feet
D
OFP OPEN FRAME PORCH OFP OPEN FRAME PORCH
40 square feet
E
OFP OPEN FRAME PORCH
135 square feet