Address: 632 34 E 8 ST   Parcel: 14010019013400

Parcel Sketches


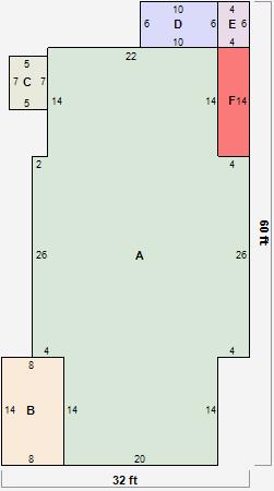
Residential Card 1

Residential Card 1
AMAIN1316 square feet
B OFP OPEN FRAME PORCH EFP ENCL FRAME PORCH 112 square feet
C OFP OPEN FRAME PORCH 35 square feet
D FR UT FRAME UTILITY BUILDING 60 square feet
E EFP ENCL FRAME PORCH 24 square feet
F EFP ENCL FRAME PORCH EFP ENCL FRAME PORCH 56 square feet