Elected Officials
Courts
Departments
Initiatives
Open Government
About
Login / Register
Home
/
Property & Tax Records
/
Property Records
/
Property & Tax Search
/
Parcel Profile
/
Sketches
Search for Another Parcel
Parcel Profile
Historical Card
Sketches
Photos
Tax Map
Taxes
Print View
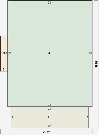
Address: 518 REED ST
Parcel: 14010020010100
Parcel Sketches
Residential Card 1
A
MAIN
720 square feet
B
FRBAY FRAME BAY
20 square feet
C
OFP OPEN FRAME PORCH
132 square feet