Elected Officials
Courts
Departments
Initiatives
Open Government
About
Login / Register
Home
/
Property & Tax Records
/
Property Records
/
Property & Tax Search
/
Parcel Profile
/
Sketches
Search for Another Parcel
Parcel Profile
Historical Card
Sketches
Photos
Tax Map
Taxes
Print View
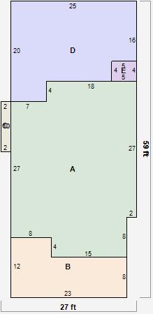
Address: 640 E 6 ST
Parcel: 14010020014000
Parcel Sketches
Residential Card 1
A
MAIN
799 square feet
B
OMP OPEN MASONRY PORCH
216 square feet
C
UNFIN BSMT BASEMENT UNFINISHED FRBAY FRAME BAY
20 square feet
D
MA STOOP/TERR MAS STOOP
428 square feet
E
MA STOOP/TERR MAS STOOP
20 square feet