Elected Officials
Courts
Departments
Initiatives
Open Government
About
Login / Register
Home
/
Property & Tax Records
/
Property Records
/
Property & Tax Search
/
Parcel Profile
/
Sketches
Search for Another Parcel
Parcel Profile
Historical Card
Sketches
Photos
Tax Map
Taxes
Print View
Address: 715 E 6 ST
Parcel: 14010022031900
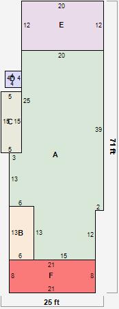
Parcel Sketches
Residential Card 1
A
MAIN
996 square feet
B
1S FR ONE STORY FRAME
78 square feet
C
1S FR ONE STORY FRAME
75 square feet
D
EFP ENCL FRAME PORCH
16 square feet
E
1S FR ONE STORY FRAME
240 square feet
F
EFP ENCL FRAME PORCH
168 square feet