Elected Officials
Courts
Departments
Initiatives
Open Government
About
Login / Register
Home
/
Property & Tax Records
/
Property Records
/
Property & Tax Search
/
Parcel Profile
/
Sketches
Search for Another Parcel
Parcel Profile
Historical Card
Sketches
Photos
Tax Map
Taxes
Print View
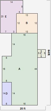
Address: 718 E 5 ST
Parcel: 14010023022000
Parcel Sketches
Residential Card 1
A
MAIN
800 square feet
B
1S FR ONE STORY FRAME
156 square feet
C
OFP OPEN FRAME PORCH
25 square feet
D
OFP OPEN FRAME PORCH
84 square feet
E
WDDCK WOOD DECKS
232 square feet