Elected Officials
Courts
Departments
Initiatives
Open Government
About
Login / Register
Home
/
Property & Tax Records
/
Property Records
/
Property & Tax Search
/
Parcel Profile
/
Sketches
Search for Another Parcel
Parcel Profile
Historical Card
Sketches
Photos
Tax Map
Taxes
Print View
Address: 837 E 6 ST
Parcel: 14010026021000
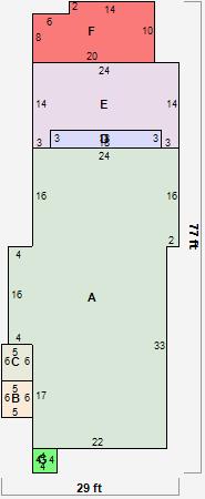
Parcel Sketches
Residential Card 1
A
MAIN
1174 square feet
B
OFP OPEN FRAME PORCH
30 square feet
C
EFP ENCL FRAME PORCH
30 square feet
D
EFP ENCL FRAME PORCH
54 square feet
E
1S FR ONE STORY FRAME
282 square feet
F
1S FR ONE STORY FRAME
188 square feet
G
OFP OPEN FRAME PORCH
16 square feet