Elected Officials
Courts
Departments
Initiatives
Open Government
About
Login / Register
Home
/
Property & Tax Records
/
Property Records
/
Property & Tax Search
/
Parcel Profile
/
Sketches
Search for Another Parcel
Parcel Profile
Historical Card
Sketches
Photos
Tax Map
Taxes
Print View
Address: 1044 E 8 ST
Parcel: 14010035012800
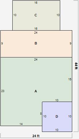
Parcel Sketches
Residential Card 1
A
MAIN
472 square feet
B
UNFIN BSMT BASEMENT UNFINISHED 1S FR ONE STORY FRAME 1S FR ONE STORY FRAME
216 square feet
C
WDDCK WOOD DECKS
160 square feet
D
OFP OPEN FRAME PORCH
100 square feet