Elected Officials
Courts
Departments
Initiatives
Open Government
About
Login / Register
Home
/
Property & Tax Records
/
Property Records
/
Property & Tax Search
/
Parcel Profile
/
Sketches
Search for Another Parcel
Parcel Profile
Historical Card
Sketches
Photos
Tax Map
Taxes
Print View
Address: 1039 E 7 ST
Parcel: 14010035020600
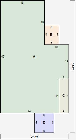
Parcel Sketches
Residential Card 1
A
MAIN
1052 square feet
B
EFP ENCL FRAME PORCH 1S FR ONE STORY FRAME
48 square feet
C
OFP OPEN FRAME PORCH
56 square feet
D
WDDCK WOOD DECKS
64 square feet