Elected Officials
Courts
Departments
Initiatives
Open Government
About
Login / Register
Home
/
Property & Tax Records
/
Property Records
/
Property & Tax Search
/
Parcel Profile
/
Sketches
Search for Another Parcel
Parcel Profile
Historical Card
Sketches
Photos
Tax Map
Taxes
Print View
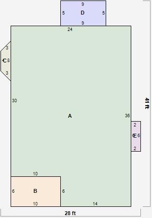
Address: 1016 E 5 ST
Parcel: 14010036022500
Parcel Sketches
Residential Card 1
A
MAIN
804 square feet
B
EFP ENCL FRAME PORCH 1S FR ONE STORY FRAME
60 square feet
C
UNFIN BSMT BASEMENT UNFINISHED FRBAY FRAME BAY
12 square feet
D
EFP ENCL FRAME PORCH
45 square feet
E
MASOH MASONRY OVERHANG AT UN ATTIC-UNFINISHED
12 square feet