Elected Officials
Courts
Departments
Initiatives
Open Government
About
Login / Register
Home
/
Property & Tax Records
/
Property Records
/
Property & Tax Search
/
Parcel Profile
/
Sketches
Search for Another Parcel
Parcel Profile
Historical Card
Sketches
Photos
Tax Map
Taxes
Print View
Address: 1124 E 8 ST
Parcel: 14010039010700
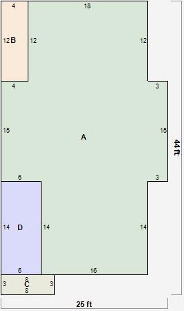
Parcel Sketches
Residential Card 1
A
MAIN
815 square feet
B
EFP ENCL FRAME PORCH
48 square feet
C
MA STOOP/TERR MAS STOOP
24 square feet
D
1S FR ONE STORY FRAME 1/2FR FRAME HALF-STORY
84 square feet