Elected Officials
Courts
Departments
Initiatives
Open Government
About
Login / Register
Home
/
Property & Tax Records
/
Property Records
/
Property & Tax Search
/
Parcel Profile
/
Sketches
Search for Another Parcel
Parcel Profile
Historical Card
Sketches
Photos
Tax Map
Taxes
Print View
Address: 412 DUNN BLVD
Parcel: 14010040020300
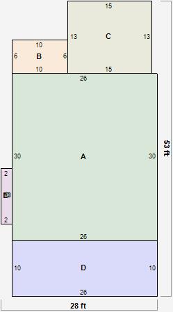
Parcel Sketches
Residential Card 1
A
MAIN
780 square feet
B
EFP ENCL FRAME PORCH
60 square feet
C
1S FR ONE STORY FRAME 1S FR ONE STORY FRAME
195 square feet
D
EFP ENCL FRAME PORCH
260 square feet
E
FRBAY FRAME BAY
20 square feet