Elected Officials
Courts
Departments
Initiatives
Open Government
About
Login / Register
Home
/
Property & Tax Records
/
Property Records
/
Property & Tax Search
/
Parcel Profile
/
Sketches
Search for Another Parcel
Parcel Profile
Historical Card
Sketches
Photos
Tax Map
Taxes
Print View
Address: 1127 E 4 ST
Parcel: 14010040020700
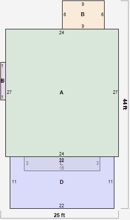
Parcel Sketches
Residential Card 1
A
MAIN
648 square feet
B
OFP OPEN FRAME PORCH
54 square feet
C
1S FR ONE STORY FRAME
48 square feet
D
OMP OPEN MASONRY PORCH
242 square feet
E
FRBAY FRAME BAY
8 square feet