Elected Officials
Courts
Departments
Initiatives
Open Government
About
Login / Register
Home
/
Property & Tax Records
/
Property Records
/
Property & Tax Search
/
Parcel Profile
/
Sketches
Search for Another Parcel
Parcel Profile
Historical Card
Sketches
Photos
Tax Map
Taxes
Print View
Address: 1124 E 3 ST
Parcel: 14010041011200
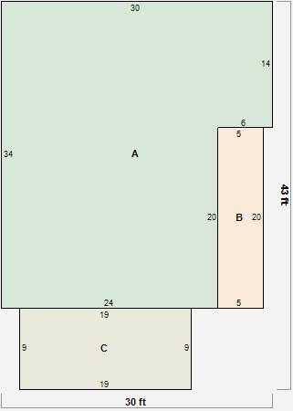
Parcel Sketches
Residential Card 1
A
MAIN
900 square feet
B
FR UT FRAME UTILITY BUILDING
100 square feet
C
EFP ENCL FRAME PORCH
171 square feet