Elected Officials
Courts
Departments
Initiatives
Open Government
About
Login / Register
Home
/
Property & Tax Records
/
Property Records
/
Property & Tax Search
/
Parcel Profile
/
Sketches
Search for Another Parcel
Parcel Profile
Historical Card
Sketches
Photos
Tax Map
Taxes
Print View
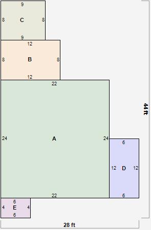
Address: 101 LIGHTHOUSE ST
Parcel: 14010045023600
Parcel Sketches
Residential Card 1
A
MAIN
528 square feet
B
1S FR ONE STORY FRAME
96 square feet
C
1S FR ONE STORY FRAME
72 square feet
D
1S FR ONE STORY FRAME
72 square feet
E
EFP ENCL FRAME PORCH
24 square feet