Address: 1330 E 7 ST   Parcel: 14011001022300

Parcel Sketches


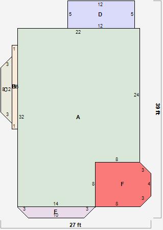
Residential Card 1

Residential Card 1
AMAIN640 square feet
BUNFIN BSMT BASEMENT UNFINISHED 1S FR ONE STORY FRAME 15 square feet
CUNFIN BSMT BASEMENT UNFINISHED FRBAY FRAME BAY 20 square feet
D EFP ENCL FRAME PORCH 60 square feet
E FRBAY FRAME BAY AT FN ATTIC-FINISHED 24 square feet
F EFP ENCL FRAME PORCH 76 square feet