Elected Officials
Courts
Departments
Initiatives
Open Government
About
Login / Register
Home
/
Property & Tax Records
/
Property Records
/
Property & Tax Search
/
Parcel Profile
/
Sketches
Search for Another Parcel
Parcel Profile
Historical Card
Sketches
Photos
Tax Map
Taxes
Print View
Address: 613 ELM CT
Parcel: 14011002020900
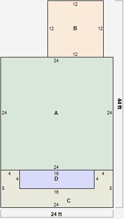
Parcel Sketches
Residential Card 1
A
MAIN
576 square feet
B
EFP ENCL FRAME PORCH
144 square feet
C
OFP OPEN FRAME PORCH
128 square feet
D
OFP OPEN FRAME PORCH 1S FR ONE STORY FRAME
64 square feet