Elected Officials
Courts
Departments
Initiatives
Open Government
About
Login / Register
Home
/
Property & Tax Records
/
Property Records
/
Property & Tax Search
/
Parcel Profile
/
Sketches
Search for Another Parcel
Parcel Profile
Historical Card
Sketches
Photos
Tax Map
Taxes
Print View
Address: 1426 E 8 ST
Parcel: 14011004012400
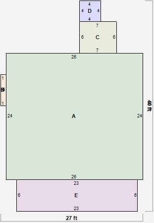
Parcel Sketches
Residential Card 1
A
MAIN
624 square feet
B
FRBAY FRAME BAY
6 square feet
C
EFP ENCL FRAME PORCH
42 square feet
D
WDDCK WOOD DECKS
16 square feet
E
OFP OPEN FRAME PORCH
138 square feet