Elected Officials
Courts
Departments
Initiatives
Open Government
About
Login / Register
Home
/
Property & Tax Records
/
Property Records
/
Property & Tax Search
/
Parcel Profile
/
Sketches
Search for Another Parcel
Parcel Profile
Historical Card
Sketches
Photos
Tax Map
Taxes
Print View
Address: 663 PAYNE AVE
Parcel: 14011004021900
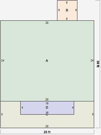
Parcel Sketches
Residential Card 1
A
MAIN
672 square feet
B
EFP ENCL FRAME PORCH
36 square feet
C
EFP ENCL FRAME PORCH
224 square feet
D
1S FR ONE STORY FRAME
64 square feet
Residential Card 2
A
MAIN
480 square feet
B
EFP ENCL FRAME PORCH
120 square feet