Elected Officials
Courts
Departments
Initiatives
Open Government
About
Login / Register
Home
/
Property & Tax Records
/
Property Records
/
Property & Tax Search
/
Parcel Profile
/
Sketches
Search for Another Parcel
Parcel Profile
Historical Card
Sketches
Photos
Tax Map
Taxes
Print View
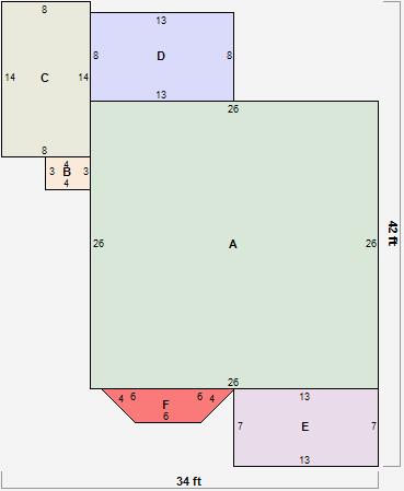
Address: 1409 ATKINS ST
Parcel: 14011005011200
Parcel Sketches
Residential Card 1
A
MAIN
676 square feet
B
MA STOOP/TERR MAS STOOP
12 square feet
C
WDDCK WOOD DECKS
112 square feet
D
OFP OPEN FRAME PORCH
104 square feet
E
OFP OPEN FRAME PORCH
91 square feet
F
UNFIN BSMT BASEMENT UNFINISHED FRBAY FRAME BAY FRBAY FRAME BAY
27 square feet