Elected Officials
Courts
Departments
Initiatives
Open Government
About
Login / Register
Home
/
Property & Tax Records
/
Property Records
/
Property & Tax Search
/
Parcel Profile
/
Sketches
Search for Another Parcel
Parcel Profile
Historical Card
Sketches
Photos
Tax Map
Taxes
Print View
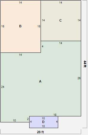
Address: 1831 E 6 ST
Parcel: 14011010011400
Parcel Sketches
Residential Card 1
A
MAIN
692 square feet
B
1S FR ONE STORY FRAME
252 square feet
C
EFP ENCL FRAME PORCH
196 square feet
D
EFP ENCL FRAME PORCH
40 square feet