Elected Officials
Courts
Departments
Initiatives
Open Government
About
Login / Register
Home
/
Property & Tax Records
/
Property Records
/
Property & Tax Search
/
Parcel Profile
/
Sketches
Search for Another Parcel
Parcel Profile
Historical Card
Sketches
Photos
Tax Map
Taxes
Print View
Address: 1841 E LAKE RD
Parcel: 14011010021100
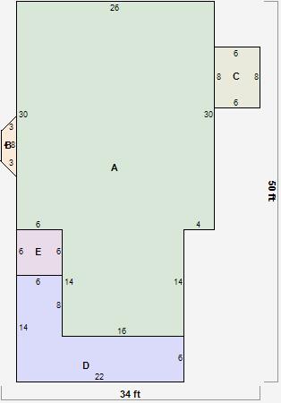
Parcel Sketches
Residential Card 1
A
MAIN
1004 square feet
B
FRBAY FRAME BAY
12 square feet
C
EFP ENCL FRAME PORCH
48 square feet
D
OFP OPEN FRAME PORCH
180 square feet
E
EFP ENCL FRAME PORCH
36 square feet