Elected Officials
Courts
Departments
Initiatives
Open Government
About
Login / Register
Home
/
Property & Tax Records
/
Property Records
/
Property & Tax Search
/
Parcel Profile
/
Sketches
Search for Another Parcel
Parcel Profile
Historical Card
Sketches
Photos
Tax Map
Taxes
Print View
Address: 1823 E LAKE RD
Parcel: 14011010021500
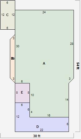
Parcel Sketches
Residential Card 1
A
MAIN
942 square feet
B
UNFIN BSMT BASEMENT UNFINISHED FRBAY FRAME BAY FRBAY FRAME BAY
36 square feet
C
EFP ENCL FRAME PORCH
72 square feet
D
OFP OPEN FRAME PORCH
168 square feet
E
EFP ENCL FRAME PORCH
48 square feet