Elected Officials
Courts
Departments
Initiatives
Open Government
About
Login / Register
Home
/
Property & Tax Records
/
Property Records
/
Property & Tax Search
/
Parcel Profile
/
Sketches
Search for Another Parcel
Parcel Profile
Historical Card
Sketches
Photos
Tax Map
Taxes
Print View
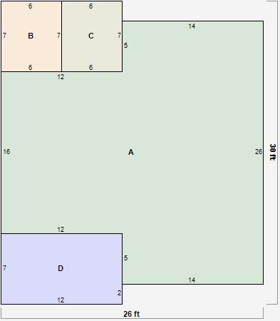
Address: 613 EUCLID AVE
Parcel: 14011016011400
Parcel Sketches
Residential Card 1
A
MAIN
556 square feet
B
OFP OPEN FRAME PORCH
42 square feet
C
EFP ENCL FRAME PORCH
42 square feet
D
OFP OPEN FRAME PORCH
84 square feet