Elected Officials
Courts
Departments
Initiatives
Open Government
About
Login / Register
Home
/
Property & Tax Records
/
Property Records
/
Property & Tax Search
/
Parcel Profile
/
Sketches
Search for Another Parcel
Parcel Profile
Historical Card
Sketches
Photos
Tax Map
Taxes
Print View
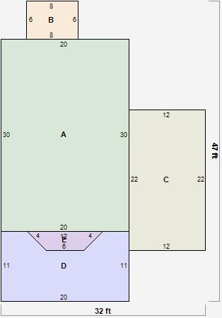
Address: 650 MARNE RD
Parcel: 14011016030400
Parcel Sketches
Residential Card 1
A
MAIN
600 square feet
B
EFP ENCL FRAME PORCH
48 square feet
C
FR GR FRAME GARAGE
264 square feet
D
OMP OPEN MASONRY PORCH
220 square feet
E
FRBAY FRAME BAY FRBAY FRAME BAY
27 square feet